Kanana

Kanana Interiors

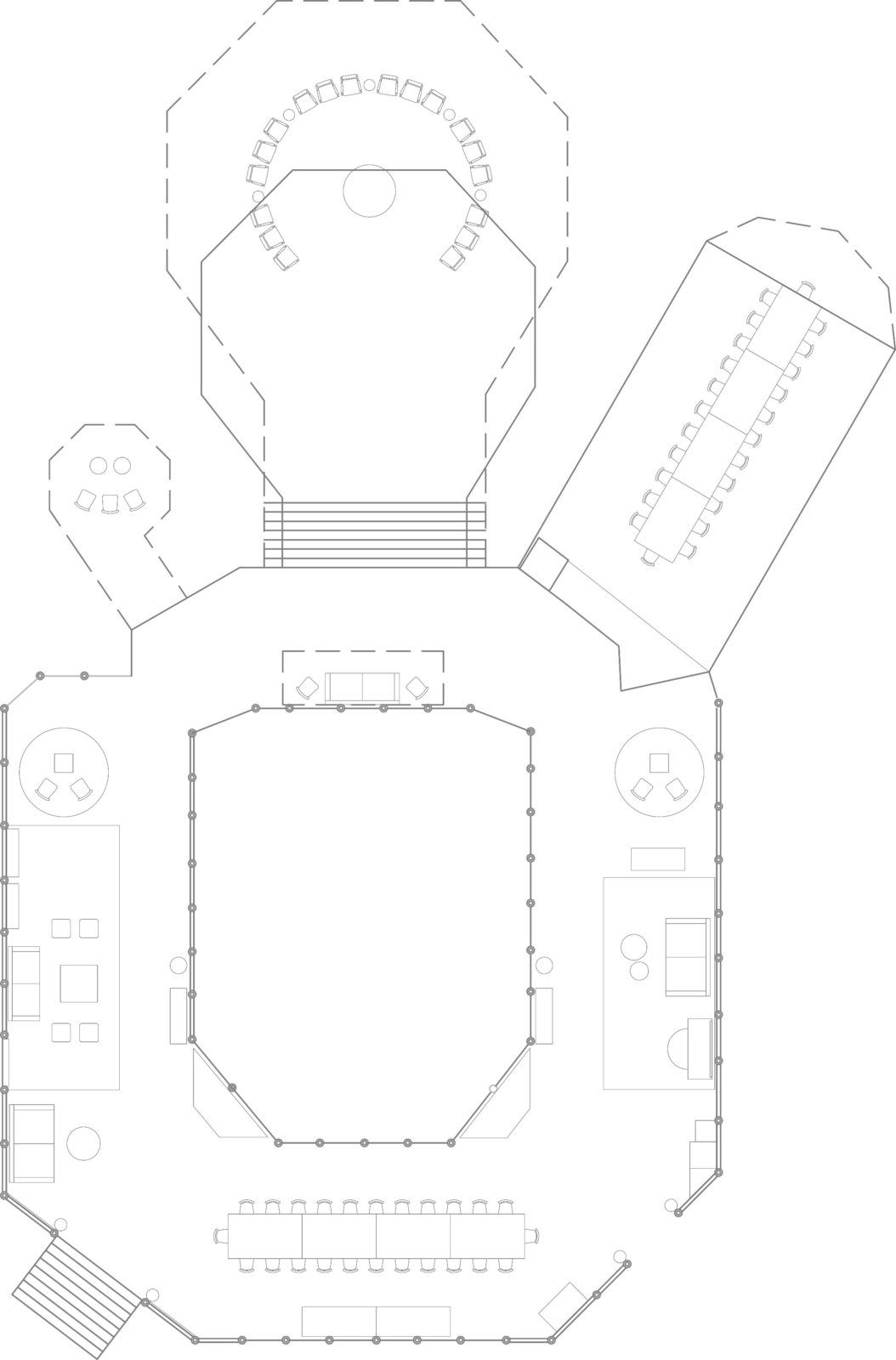
Kanana combined 1920’s explorer design cues with the organic flow of roots, trunks and elephant dung walkways. Making Kanana a hidden natural gem to be discovered in amongst the fig and jackalberry trees.

working illustrations